Realitní kancelář ZOO reality

Prodej Aktivní

Prodej byt 2+1,Ústecký kraj, Chomutov, Arbesova (Chomutov)

Cena na vyžádání

Adresa:

Arbesova 4621

ID nabídky:

10111

Popis nemovitosti

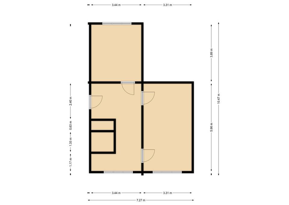
Prodej bytové jednotky 2+1 v osobním vlastnictví, ulice Arbesova v centru města Chomutova. Bytový dům prošel celkovou revitalizací včetně výtahu. Byt je původním stavu, vhodný ke kompletní rekonstrukci dle Vašich představ. Tento byt je ideální volbou i pro investory hledající perspektivní nemovitost s potenciálem pro zhodnocení. Byt se skládá z předsíně, kuchyně, dvou pokojů. Fond oprav je ve výši 2.300,- Kč. Bytový dům se nachází v centru města. V okolí se nachází veškerá občanská vybavenost, včetně obchodů, škol, zdravotnických zařízení a zelených ploch pro volnočasové aktivity. Bezproblémová dopravní dostupnost zajišťuje snadné spojení s centrem města i okolními lokalitami. V případě zájmu o prohlídku nás neváhejte kontaktovat.


Základní údaje a parametry

Dispozice bytu:
2 + 1
Celková podlahová plocha je:
60 m2
Energetická třída
G - Mimořádně nehospodárná podle zákona Č. 148/2007 Sb.

Mapa


Co je poblíž?

  • Restaurace: Získávám data...
  • Nemocnice: Získávám data...
  • Školy: Získávám data...
  • Doprava: Získávám data...
  • Park: Získávám data...
  • Lékárna: Získávám data...
  • Posilovna: Získávám data...
  • Obchod: Získávám data...

Kontaktovat makléře

Irena Vysokomenská
Irena Vysokomenská

792 318 659

ivysokomenska@zooreality.cz

Pobočka CHOMUTOV