Realitní kancelář ZOO reality

Prodej Aktivní

Prodej, byt 3+1, 70 m2, Volary, Sídliště Míru

2 890 000 Kč

Adresa:

Volary, Prachatice, Sídl. Míru

ID nabídky:

10141

Popis nemovitosti

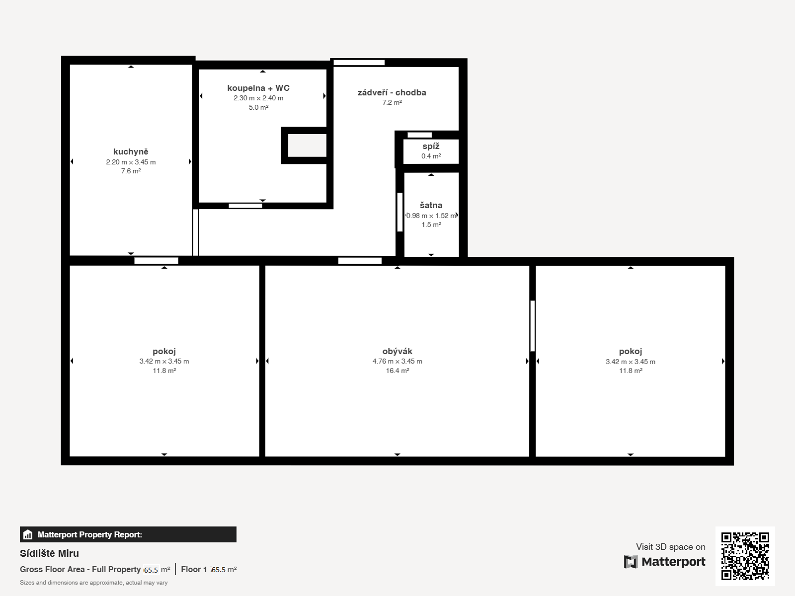
Prodej velmi zdařile rekonstruovaného družstevního bytu 3+1 o podlahové ploše 65,5 m2 s příslušenstvím (sklep) 4,5 m2, čili užitné ploše 70 m2. Jednotka se nachází v prvním patře (druhé podlaží) revitalizovaného panelového domu s novým výtahem, v krásné okolní krajině města Volary, uprostřed Chráněné krajinné oblasti Šumava. Rekonstrukce bytu je v podstatě zánovní a proběhla v roce 2021. Jsou zde nové bytové jádro, které rozděluje prostor chodby a kuchyně s jídelním koutem, koupelna je pak koncipována společně s WC, čímž zde vzniká větší užitný prostor, ovšem ne na úkor kuchyně, kde je dostatek místa i na jídelní kout. Jsou zde nové rozvody elektro - Cu (v celém bytě), vody i odpadů, na podlahách jsou pak podlahové krytiny typů - dlažba, plovoucí podlaha, koberec, vstupy do jednotlivých prostor jsou pak zakončeny dřevěnými obložkami a osazeny novými dveřními křídly, na stropech jsou instalovány nové moderní typy plochých ledkových osvětlení, kuchyňská linka na míru s vestavěnými spotřebiči vč. myčky, nová dvojdesková topná tělesa (radiátory) s termostatickými hlavicemi a s dálkově odečitatelnými měřiči tepla, aj. Dispozice je řešená vstupní chodbou s věšákem v prostoru zádveří a vstupem posuvnými dveřmi do vytvořeného úložného prostoru/spíže (ca 0,5 m2) a na ní pak v chodbě navazující samostatnou šatnou (ca 1,5 m2). Z chodby pokračujeme do dalších obytných prostor jako obývák s navazujícím pokojem s orientací do vnitrobloku, propojovací chodbou pak do koupelny s WC a následně do kuchyně s jídelním koutem a také s navazujícím pokojem orientované ke komunikaci procházející Volarami. Dům je bez dluhů a závazků s doplacenou revitalizací objektu (blok dvou vchodů) včetně výtahu. Nemovitost si můžete projít v 3D virtuální prohlídce s možností zoomování, měření, interaktivní 3D model, aj. Nízké náklady na provoz - energetická třída B, orientace oken - kuchyně s pokojem - SZ, obývák JZ a pokoj/ložnice JV směrem. Byt je udržovaný, působí čistě, světle a je dobře situován. V obci většinová občanská vybavenost v docházkové vzdálenosti, více viz. odkazy pod inzerátem na jednotlivých serverech, nadřazené úřady v 18 km vzdáleném okresním městě Prachatice. Je vhodný jak pro bydlení, tak pro rekreační účely na Šumavě i pracovní příležitosti v blízkém příhraničí. Více informací a cenu rád sdělím na dotaz, nicméně cena je nastavena relativně příznivě vzhledem k současným tržním cenám a situaci na trhu vůči užitné hodnotě nemovitosti a kvalitě provedené rekonstrukce.


Základní údaje a parametry

Dispozice bytu:
3 + 1
Celková podlahová plocha je:
70 m2
Energetická třída
B – Velmi úsporná podle zákona Č. 78/2013 Sb.
Virtuální prohlídka
Otevřít >>

Mapa


Co je poblíž?

  • Restaurace: Získávám data...
  • Nemocnice: Získávám data...
  • Školy: Získávám data...
  • Doprava: Získávám data...
  • Park: Získávám data...
  • Lékárna: Získávám data...
  • Posilovna: Získávám data...
  • Obchod: Získávám data...

Kontaktovat makléře

Josef Škopek
Josef Škopek

777 644 233

jskopek@zooreality.cz

Pobočka ČESKÉ BUDĚJOVICE