Realitní kancelář ZOO reality

Prodej Aktivní

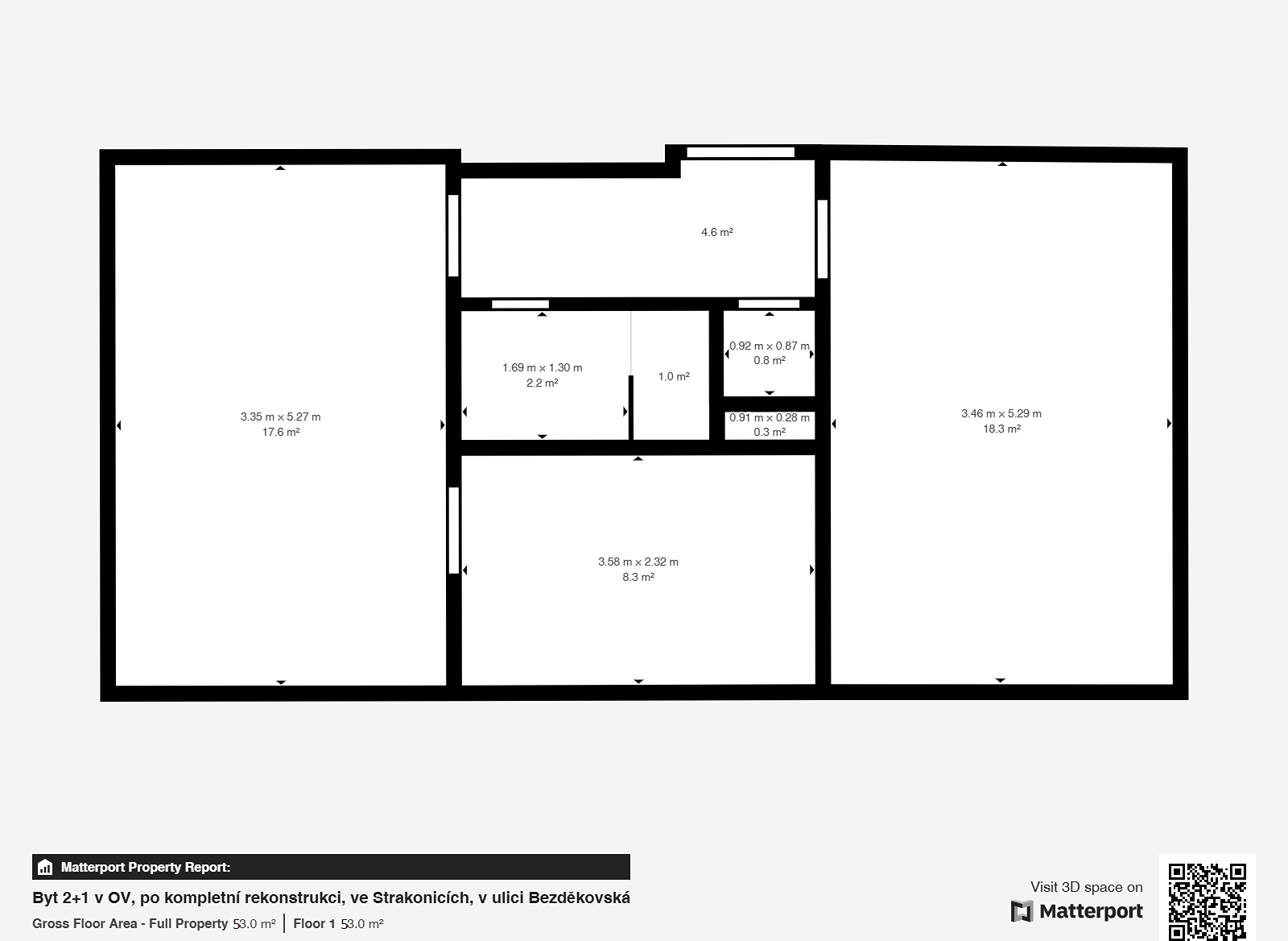
Prodej, Byt 2+1, 55 m2, Strakonice, Bezděkovská

Cena na vyžádání

Adresa:

Strakonice, Strakonice, Bezděkovská

ID nabídky:

10144

Popis nemovitosti

Prodej rekonstruovaného bytu v žádané lokalitě širšího centra Strakonic o dispozici 2+1 a celkové užitné ploše 55 m2, včetně sklepního příslušenství. Byt se nachází ve 4. patře bytového domu s výtahem a je po kompletní zdařilé rekonstrukci - plastová okna s žaluziemi, vystěrkované a vyrovnané podlahy včetně krytin - linoleum s povrchovou imitací matného kamene, zděné jádro, koupelna s prostorným sprchovým koutem a prostorem pro pračku se sušičkou, oddělené sociální zařízení s odkladovým prostorem a úložnou skříňkou nad závěsným wc, obkladové dlažby, vyštukované zdivo celého bytu, dekorační kamenný obklad v obýváku, sádrokartonové podhledy, rozvody elektro v Cu, voda i odpady, odvětrávání prostor bytového jádra, dvojdesková topná tělesa + žebřík v koupelně s termostatickými hlavicemi, dveřní křídla, aj.. Dále jsou v obytných místnostech na stěnách instalované přípojky pro nástěnné umístění televizorů. Na míru řešená kuchyňská linka včetně vestavěných spotřebičů - myčka, trouba, mikrovlnka, digestoř, přidružená spíš v designu kuchyně - kuchyně otevřená do obýváku. Na chodbě je pak na míru dělaný úložný systém skříněk nad věšákem, tak, že opticky ani prostorově nenarušuje tento propojovací vstupní prostor, v pokoji je dále součástí vestavěná skříň. Dispozice bytu je velmi dobře řešena, že je rozdělena vstupní chodbou (4,5 m2) na denní část - kuchyně (8.5 m2) propojená s obývacím prostorem (17,5 m2) a na druhou stranu ložnice/pokoj (18 m2), koupelna (3,5 m2) a WC (1 m2) mají pak vstup samozřejmě z chodby. Veškerá vybavenost a služby jsou dostupné ve městě, viz. odkazy pod inzerátem na inzertních serverech. Orientace oken je do klidné zadní části bloku s možností parkování, s orientací JZ směrem, čili se jedná o slunný byt. Nemovitost si můžete také projít ve virtuální prohlídce s možností zoomování, či měření. Více informací rád sdělím na dotaz, či osobně na prohlídce.


Základní údaje a parametry

Dispozice bytu:
2 + 1
Celková podlahová plocha je:
55 m2
Energetická třída
C – Úsporná podle zákona Č. 148/2007 Sb.
Virtuální prohlídka
Otevřít >>

Mapa


Co je poblíž?

  • Restaurace: Získávám data...
  • Nemocnice: Získávám data...
  • Školy: Získávám data...
  • Doprava: Získávám data...
  • Park: Získávám data...
  • Lékárna: Získávám data...
  • Posilovna: Získávám data...
  • Obchod: Získávám data...

Kontaktovat makléře

Josef Škopek
Josef Škopek

777 644 233

jskopek@zooreality.cz

Pobočka ČESKÉ BUDĚJOVICE